Building a safe, functional, and beautiful equestrian facility requires a perfect partnership between premium manufacturing and expert local installation. At FCP Barns and Buildings, we take immense pride in crafting “America’s Best-Built” modular structures. We take equal pride in the authorized dealers who bring our engineering to life.
Recently, our four-time Dealer of the Year, Coffman Barns, completed Phase One of a breathtaking custom multi-purpose horse barn in Littleton, Colorado. This project perfectly demonstrates what happens when you combine FCP’s legendary structural integrity with decades of specialized equestrian construction expertise.
Let us take you on a detailed walkthrough of this unique build. We will explore the innovative layout, the premium materials, and the unparalleled safety features that make this FCP-manufactured barn a true masterpiece.
A Custom Multi-Purpose Layout Designed for Performance
Crafting the perfect multi-purpose barn means balancing daily functionality, animal safety, and long-term structural integrity. You need a layout that works just as hard as you do. For this property in Littleton, standard inline barn designs simply would not suffice. The owner needed a facility capable of housing horses, storing large trailers, and protecting heavy equipment from the harsh Colorado elements.
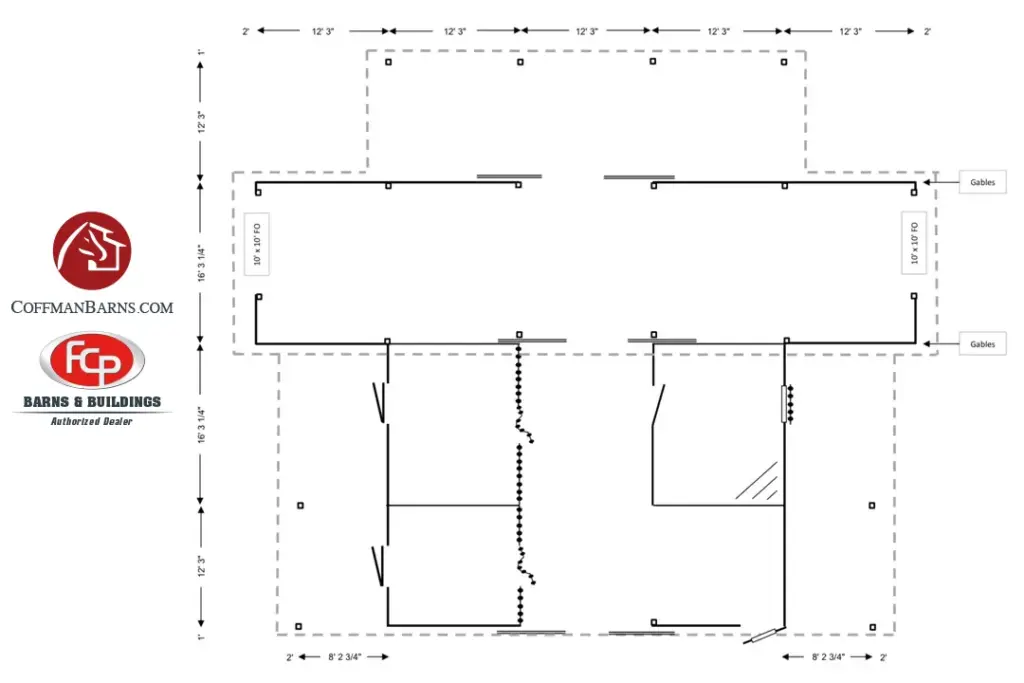
The Unique T-Shaped Floor Plan
To meet these demanding requirements, Coffman Barns designed a highly customized T-shaped floor plan. This innovative layout maximizes space while separating the equine living areas from the equipment storage zones.
The most prominent feature of this design is the massive 60-foot by 16-foot storage garage. This fully enclosed space provides absolute protection for large horse trailers, tractors, and essential farm equipment. By integrating this garage directly into the barn structure, the property owner gains seamless access to their tools and transport vehicles without ever having to step out into the snow or rain.
Adjacent to the garage, the design features a generous 48-foot by 12-foot porch extension. This covered area provides excellent shade during the hot summer months and keeps snow away from the high-traffic exterior entryways during the winter. Opposite the gable entry, a 12-foot entrance flows smoothly into the main 28-foot by 36-foot gable barn, connecting the living and working spaces flawlessly.

Optimized Interior Flow and Ventilation
Inside the main equestrian section, a spacious 12-foot breezeway serves as the central artery of the barn. This wide aisle provides plenty of room to lead horses safely, maneuver feed carts, and operate equipment without feeling cramped.
Along the exterior, Coffman Barns integrated porch shelters on both sides. These overhangs act as vital run-in shelters for the horses, allowing them to escape sudden weather changes while turned out. They also provide shaded, dry areas for people working outside the barn.
To ensure optimal airflow, the design incorporates integrated windows on the breezeway doors. These allow the owner to control ventilation and natural light without having to open the massive main doors, which is especially useful during blustery Colorado winter days.
Premium FCP Quality Inside and Out
An exceptional layout demands exceptional finishes. The interior of this Littleton project highlights several of FCP’s most popular and durable stall components.
Spacious Stalls with Coventry Fronts
The stall layout accommodates horses of all sizes. It features a standard 12-foot by 12-foot stall alongside a larger 16-foot by 12-foot stall, perfectly sized for stallions or foaling mares. Both stalls include rear sliding Dutch doors outfitted with plexiglass. These doors maximize natural light and cross-ventilation while keeping the horses secure.
For the interior aesthetic, the owner selected our elegant FCP Coventry stall fronts. To elevate the look even further, these heavy-duty steel fronts feature custom TimberTech tongue-and-groove inserts. TimberTech offers the classic, warm appearance of natural wood but delivers far superior durability. It will not warp, splinter, or rot, making it an ideal choice for high-traffic equine environments. Coffman Barns applied this same premium finish to the tack room front, creating a cohesive, high-end look down the entire breezeway aisle.
Purpose-Built Tack and Wash Areas
Organization and hygiene are critical components of any successful equestrian property. Across from the stalls sits a large 16-foot by 12-foot tack room. This secure space keeps expensive saddles, bridles, and feed supplies organized and protected from pests. A custom concrete finish on the floor ensures the space remains easy to sweep and sanitize.
Next to the tack room, a 12-foot by 12-foot open wash bay offers a dedicated, safe space for bathing horses and cleaning gear. To improve winter usability, Coffman Barns installed an exterior steel man door that opens directly into the wash bay. This clever addition allows the owner to enter the barn and access the wash area without opening the large main breezeway doors, keeping the interior climate much warmer during freezing weather.
The FCP Advantage: Engineered for Life
While the layout and finishes of this multi-purpose barn are visually stunning, the true value lies beneath the surface. Like all FCP structures, this Littleton barn features our industry-leading engineering and materials.
Unmatched Durability with Galvanized Steel
We manufacture our barns using heavy-duty galvanized steel framing. Unlike traditional wood framing, our steel structures are completely resistant to rust, rot, and termite damage. This structural integrity is especially important in Colorado, where buildings must withstand heavy snow loads and high-speed winds. When you build with FCP, your dream barn will last a lifetime with minimal maintenance.
Safety First: Kick-Proof and Chew-Proof
Equine safety drives every engineering decision we make. We lead the industry with our lifetime kick-through and chew-through wall panels. Traditional wood stalls can splinter when kicked, causing severe leg injuries. Horses can also chew on wood, ingesting harmful splinters and bacteria. Our steel-lined wall panels completely eliminate these risks. Your horses stay safe from injury, and your barn remains free from unsightly damage.
Near-Zero Fire Spread Rating
Fire safety is a critical concern for every horse owner, particularly in dry Western climates. Steel is naturally resistant to fire, making our structures significantly safer than traditional combustible wood barns. The steel-lined wall panels and dividers in our FCP barns offer a near-zero fire spread rating. They prevent fire from moving between stalls, giving you precious time to evacuate your animals in the event of an emergency. This peace of mind is truly invaluable.
A Low-Maintenance, Hygienic Environment
Wood absorbs moisture, holding onto odors and harboring disease-causing bacteria. Our non-porous wall panels are incredibly low maintenance and easily sanitized. A quick power wash removes dirt and prevents the spread of equine diseases. Furthermore, because we engineer our components with precision, you will find no sharp edges or rusty nails protruding into the living spaces. This means no more mysterious cuts, scrapes, or pulled manes and tails.
Spotlighting Coffman Barns: Turnkey Excellence
We design and manufacture the best barn components in America, but it takes an expert contractor to assemble them into a masterpiece. Coffman Barns has been a trusted name in the equestrian construction industry since 1983. As a one-stop contractor, they manage complex projects from the initial architectural design phase straight through to final construction.
Their deep understanding of equine behavior, local building codes, and structural engineering allows them to tailor our FCP components to match any unique lifestyle or property layout. This Littleton project showcases exactly why leading equestrian professionals consistently choose Coffman Barns for complete turnkey services. We are incredibly proud to have them represent the FCP brand as our authorized dealer.
Phase One Complete: What Comes Next?
The structural skeleton, exterior paneling, and primary layout of this multi-purpose horse barn are firmly in place. Phase One successfully established the rugged durability and functional footprint the property required. However, the project is not quite finished.
Coffman Barns is currently working on the final interior touches that will transform this robust FCP-manufactured structure into a fully operational, premium equestrian facility. We look forward to sharing another detailed update once Phase Two wraps up. Stay tuned for final photos of the completed interior work.
Build Your Dream Barn with FCP
Whether you need a simple two-stall shelter or a massive, complex multi-purpose facility like this one in Littleton, FCP Barns and Buildings has the engineering expertise to bring your vision to reality. Since 1982, we have proudly manufactured America’s “Best-Built” modular barns, backing our work with an industry-leading warranty.
You deserve a barn that offers uncompromising safety, zero-maintenance durability, and stunning visual appeal. Reach out to FCP Barns and Buildings today, or connect with our elite network of authorized dealers like Coffman Barns. Let us help you design and build a safe, beautiful, and lasting home for your horses.
To learn more about Custom Barns, call and speak to an FCP design consultant at 1-800-807-2276.
Regular business hours Mon-Fri 8am-5pm (PST).

























